
















- nowoczesne rozwiązania funkcjonalne,
- ekonomię budowy i późniejszej eksploatacji,
- kontakt z naturą przy jednoczesnym zachowaniu pełnej wygody mieszkania,
- możliwość aranżacji wnętrz pod indywidualne potrzeby.
- Solidne tynki i posadzki, gotowe do dalszego wykończenia według własnego gustu.
- Kompleksowe instalacje: elektryczna, wodno-kanalizacyjna oraz instalacja grzewcza pod ogrzewanie podłogowe przygotowana pod pompę ciepła (bez jednostki cieplnej).
- Ocieplone poddasze i eleganckie obłożenie płytami karton-gips – idealne do stworzenia funkcjonalnych przestrzeni użytkowych.
- Estetyczna elewacja podkreślająca nowoczesny charakter domu.
- Szambo ze studnią, zapewniające pełną niezależność.
- Okna w kolorze antracyt o wysokiej jakości: profil Salamander, potrójne szyby, ukryte zawiasy, przesuwne HST. Rolety zewnętrzne z silnikiem antypożarowym i możliwością sterowania aplikacją.
- Brama garażowa Hormann – solidna i nowoczesna.
- Dach pokryty trwałą dachówką ceramiczną.
Oferujemy na sprzedaż dom jednorodzinny w stanie deweloperskim wybudowany według popularnego projektu Z269 – nowoczesnego i funkcjonalnego domu parterowego z poddaszem użytkowym.
Oferta bez prowizji dla Kupującego.
Z269 to projekt domu jednorodzinnego, który harmonijnie łączy tradycyjną formę z nowoczesnym stylem. Prosta, kompaktowa bryła budynku zwieńczona jest klasycznym dwuspadowym dachem, co nie tylko nadaje konstrukcji ponadczasowy wygląd, ale również wpływa korzystnie na ekonomikę budowy i późniejszej eksploatacji. Jasna kolorystyka elewacji uzupełniona została o dekoracyjne akcenty, które subtelnie podkreślają nowoczesny charakter budynku. To dom, który z powodzeniem wpisze się zarówno w wiejski krajobraz, jak i bardziej zurbanizowane otoczenie.
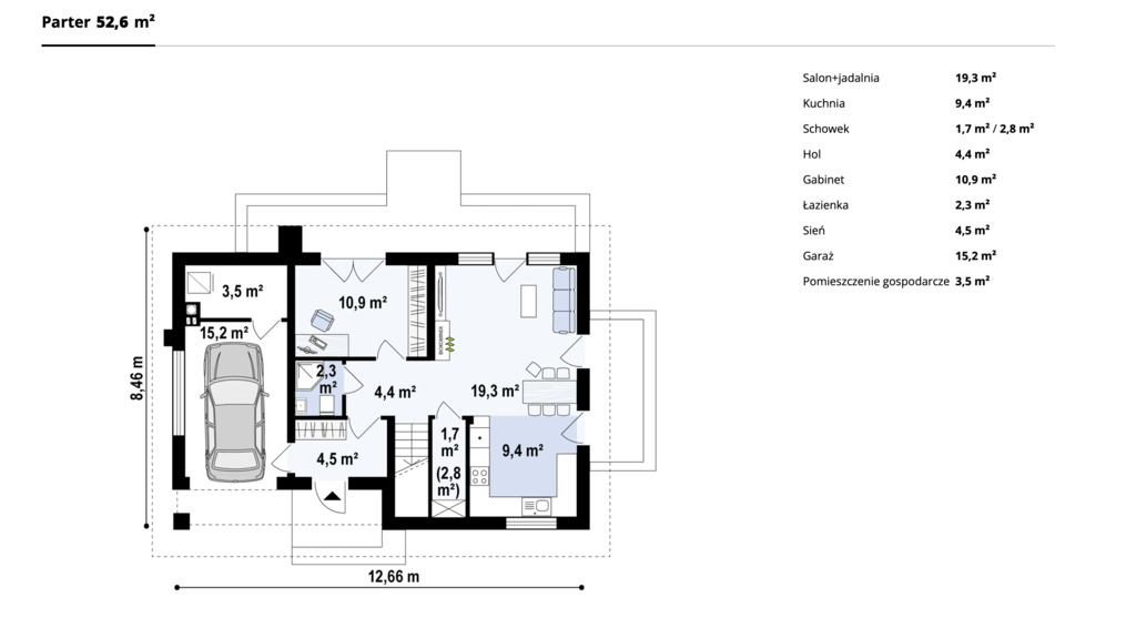
Przemyślany układ funkcjonalny Parter stanowi otwartą, dobrze doświetloną przestrzeń dzienną. Znajduje się tu salon połączony z jadalnią oraz kuchnią, co zapewnia swobodę aranżacji i ułatwia codzienne życie domowników. Dzięki dużym przeszkleniom pomieszczenia są jasne i naturalnie doświetlone przez większą część dnia. Dodatkowy pokój na parterze może pełnić funkcję gabinetu, pokoju gościnnego lub sypialni seniora – w zależności od indywidualnych potrzeb mieszkańców. Znajdują się tu również łazienka, hol wejściowy, praktyczna sień oraz garaż jednostanowiskowy z przejściem do wnętrza domu, co jest dużym udogodnieniem, zwłaszcza zimą.
Poddasze to strefa prywatna. Zaprojektowano tu cztery ustawne sypialnie, z których każda może być indywidualnie zaaranżowana. Największa sypialnia posiada dostęp do osobnej łazienki, co stanowi wygodne rozwiązanie dla rodziców lub gospodarzy domu. Druga, większa łazienka, usytuowana centralnie, została zaprojektowana tak, by pomieścić zarówno wannę, jak i prysznic, oferując komfort wszystkim domownikom. Dopełnieniem tej strefy jest garderoba, która zwiększa funkcjonalność poddasza.
Z myślą o lokalizacji Wariant Z269 świetnie komponuje się z naturalnym otoczeniem – lokalizacja u podnóża lasu w miejscowości Baczyna to idealne tło dla tego projektu. Przestronność wnętrz i duże przeszklenia sprawiają, że mieszkańcy mogą cieszyć się widokiem na zieleń oraz kontaktem z naturą każdego dnia.
Uniwersalna i energooszczędna bryła Dom w technologii murowanej z tradycyjną więźbą dachową pozwala na łatwą adaptację projektu do własnych potrzeb oraz zastosowanie różnych technologii wykończeniowych. Prosta forma sprzyja również energooszczędnym rozwiązaniom, jak rekuperacja czy panele fotowoltaiczne.
Z269 – idealny wybór dla nowoczesnej rodziny Ten projekt będzie idealny dla osób ceniących:
Nieruchomość zlokalizowana w miejscowości Baczyna, przy ścianie lasu – idealne miejsce dla osób ceniących ciszę, naturę i świeże powietrze.
Dom w stanie deweloperskim, gdzie każdy detal został przemyślany z myślą o komforcie i nowoczesnych rozwiązaniach. W standardzie znajdziesz:
Całość wykonana z dbałością o najwyższą jakość wykończenia i nowoczesne technologie, które zapewniają komfort, bezpieczeństwo i energooszczędność.
Ten dom to idealna baza, aby stworzyć swoje wymarzone wnętrze w nowoczesnym stylu!
Możliwość wykończenia o dalsze prace wykończeniowe lub nawet „pod klucz” – do indywidualnego ustalenia. Zakres, standard oraz materiały dopasowujemy do Twoich oczekiwań i budżetu.
Zapraszam do kontaktu.